廣州梓凈是一家專業潔凈工作棚廠家,潔凈工作棚非標準定做,質量可靠、規格尺寸齊全,廣州梓凈不僅具有精湛的技術水平,更有良好的售后服務和優質的解決方案,歡迎您來電咨詢此潔凈工作棚價格具體參數及價格等詳細信息。
在空氣潔凈技術和空氣過濾領域,有著突出的成就,制定和選擇合適的潔凈空氣解決方案至關重要。當您準備創建無塵潔凈的生產工藝環境時,當您希望擁有健康舒適的室內空氣時,只有優質、全面的空氣過濾系統解決方案和配套優質的潔凈棚才會給您帶來安全可靠的保障。不同規格尺寸、不同材質的潔凈工作棚價格就不同。
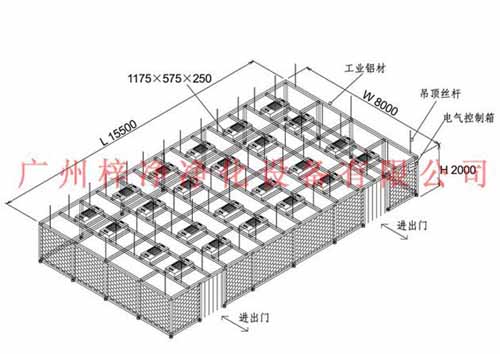
潔凈工作棚是一種可提供局部高潔凈環境的空氣凈化設備。潔凈工作棚主要由箱體、風機、初效空氣過濾器、阻尼層、燈具等組成,外殼噴塑。該產品既可懸掛,又可地面支撐,結構緊湊,使用方便。可以單個使用,也可多個連接組成帶狀潔凈區域。

潔凈工作棚是概述:
潔凈工作棚(簡稱:潔凈棚)無塵潔凈棚是為最快速方便建立的一座簡易潔凈室,潔凈棚具備多種潔凈等級及空間搭配可以根據使用需求設計制作,因此其簡便運用彈性大安裝容易且施工期短以及可移性為其主要特點,潔凈工作棚同時可針對在一般等級的潔凈室中局部地區需要高潔凈度的地方局部增設以降低成本。
潔凈工作棚特別適用于電子、微電子、半導體、液晶、醫藥、生物、工程、光學、航天等行業。
潔凈工作棚又稱為:潔凈棚、凈化棚、潔凈房、凈化房、無塵棚、無菌棚、潔凈操作棚、凈化無塵工作棚。
潔凈棚級別等級:百級潔凈棚,千級潔凈棚,萬級潔凈棚,十萬級潔凈棚,三十萬級潔凈棚。
1、潔凈工作棚是框架:以工業鋁材(或不銹鋼方通、鐵方通噴塑)作為框架穩固、美觀、不生銹、不產塵;
2、潔凈工作棚是防靜電垂簾:四周圍用防靜電垂簾(或鋼化玻璃),防靜電效果好、透明度高、網格清晰、柔韌度好、不變形、不易老化;
3、潔凈工作棚是風機濾網機組FFU:,采用離心風機,具有長壽命、低噪聲、免維護、震動小、可無級變速等特性,風機質量可靠,工作壽命長,加上獨特的風道設計,大大提高了風機的效率、降低了噪聲。內部凈化級別可達100-100K級;特別適用于車間內局部凈化級別要求高的區域,如流水線作業區域。
4、潔凈工作棚是內部采用凈化室專用凈化燈,不產塵;

潔凈工作棚是特點:
風機從FFU頂部將空氣吸入,經初效過濾器,高效過濾器過濾,過濾后的潔凈空氣在整個出風面以0.45m/s±20%的風速勻速送出到潔凈棚內。形成均流層,使潔凈空氣氣流呈垂直單向流,從而保證了工作區內所要求的潔凈度。
潔凈工作棚是優點:
1、潔凈工作棚是可單獨使用,也可組合使用。
2、潔凈工作棚是與土建式或裝配式百級潔凈室相比,投資少,見效快,安裝簡便,運行費用低。
3、潔凈工作棚是模塊化結構,提高潔凈度等級容易,擴展性強,且重復利用價值高
4、潔凈工作棚是移動方便(可安裝萬向輪)

潔凈工作棚與無塵車間的比較:
1、什么是潔凈工作棚?潔凈工作棚,又名無塵潔凈棚/凈化潔凈棚/百級潔凈棚/千級潔凈棚/萬級潔凈棚,為在亂流式之潔凈室空間內以防靜電之透明塑料布圍成一小空間,采用獨立之HEPA或ULPA及空調送風機組而成為一較高級之潔凈空間,其等級為100~10000級,內部空間高度在2.0米左右,覆蓋面積約50m2以下,四支支柱可加裝活動輪,可為彈性運用。
2、潔凈工作棚材料:
潔凈棚的框架一般有三種:不銹鋼方通,鐵方通,鋁型材。
潔凈棚頂部材料一般有三種:不銹鋼板,冷軋鋼板噴塑,防靜電網格圍簾,(防靜電)亞克力板。
潔凈送風部分,一般選擇FFU層流罩(FFU層流送風單元)
潔凈棚的圍護材料一般包括:防靜電圍簾,(防靜電)亞克力板。
3、潔凈工作棚凈化級別的選擇:
比較多的客戶,會選用千級潔凈棚,或萬級潔凈棚,少量客戶會選用百級或萬級。總之,潔凈棚級別的選擇在于客戶對潔凈度的需要而定,但因潔凈棚比較密閉,如選擇潔凈棚級別比較低時,往往會帶來部分副作用:冷量不足,員工在潔凈棚內會感覺比較悶熱,所以實際在和客戶的溝通過程中,需要注意這點。
4、潔凈工作棚與無塵車間的成本比較:
總體說,大部分客戶會將潔凈棚建在無塵室之內,但有的客戶不想單獨建無塵車間,在潔凈棚不考慮空調系統及風淋室、傳遞窗等凈化設備的情況下,潔凈棚的成本約是無塵車間造價的40%~60%,這取決于客戶對潔凈棚材料的選擇,以及潔凈棚的大小。需要潔凈的區域越大,潔凈棚與無塵車間的成本相比差別會越小。
5、潔凈棚的優勢:
A、施工速度快,安裝方便
B、成本較低,維護方便
C、容易控制,FFU每臺自帶風機;
6、潔凈棚的缺點:
A、因大量使用FFU風機過濾單元,因此潔凈棚的噪音可能會比較大;
B、FFU自帶風機,風機多,維護頻率高;
C、因空間送風原因,潔凈棚內往往會感覺悶熱;
D、如果潔凈棚不是建在無塵車間內,因缺少中效過濾器保護,高效過濾器的使用壽命與無塵車間相比,會相應縮短,長期的使用成本較高。

潔凈工作棚是污染源知識:
1、潔凈棚是發塵量:潔凈棚內的發塵量
來自設備的可考慮通過局部排風排除,不流入室內;潔凈工作棚是產品,材料等在運送過程中的發塵與人體發塵量相比,一般極小,可忽略;由于金屬半壁(彩鋼夾心板)的應用來自建筑表面的發塵也很少,一般占10%以下,發塵主要來自人,占90%左右。在人的發塵量上,由于服裝材料和樣式的改進,發塵絕對量也不斷減少。
A、材質:棉質發塵量最大,以下依次為棉、的確良、去靜電純滌綸、尼龍。
B、樣式:大掛式發塵量最大,上下分裝型次之,全罩型最少;
C、活動:動作時的發塵量一般達到靜止時間3-7倍;
D、清洗:用溶劑洗滌的發塵量降至用一般水清洗的五分之一。
室內維護結構表面發塵量,以地面為準,大約相應8平方米地面時的表面發塵量與一個靜止的人的發塵量相當。
2、潔凈棚是發菌量:工作人員產生的污染
1)皮膚:人類通常每四天完成一次皮膚的完全脫換,人類每分鐘脫落約1000片皮膚(平均大小為30*60*3微米);
2)頭發:人類的頭發(直徑約為50~100微米)一直在脫落;
3)口水:包括鈉、酶、鹽、鉀、氯化物及食品微粒;
4)日常衣物:微粒、纖維、硅土、纖維素、各種化學品和細菌;
5)人類靜止和坐立每分鐘將產生10000個大于0.3微米的微粒;
6)人類在頭部和軀干做動作時每分鐘將產生1000000個大于0.3微米的微粒;
7)人類以0.9m/s的速度行走時每分鐘將產生5000000個大于0.3微米的微粒。
分析國外試驗資料可以認為:
(1) 潔凈室內當工作人員穿無菌服時:靜止時的發菌量一般為10-300個/min.人軀體一般活動時的發菌量為 150-1000個/min.人快步行走時的發菌量為 900-2500個/min.人;
(2) 咳嗽一次一般為 70~700個/ min.人噴嚏一次一般為 4000~62000個/ min.人;
(3) 穿平常衣服時發菌量 3300~62000個/ min.人;
(4) 無口罩發菌量:有口罩發菌量 1:7~1:14;
(5) 發菌量:發塵量 1:500~1:1000;
(6) 手術中人員發菌量 878個/ min.人
所以,可知潔凈棚是潔凈室內無菌衣人員的靜態發菌量一般不超過300個/ min.人,動態發菌量一般不超過1000個/ min/人,以此作為計算依據是可行的。

廣州梓凈所提供的空氣凈化產品及設備有風淋室,貨淋室,初效過濾器,中效過濾器,高效過濾器、超凈工作臺,潔凈工作臺,傳遞窗,風淋室配件,風淋室控制器,化學過濾器,FFU風機過濾單元,空氣自凈器,潔凈棚,新風柜,過濾柜,通風柜,洗手池,潔凈采樣車,高風效送口等等潔凈室及配套用凈化產品等。無塵車間凈化設備廣泛應用于電子、半導體、生物制藥、食品加工、核工業、汽車制造業,空調暖通業行業和領域等。
梓凈專從凈化設備與凈化工程,無塵車間承建商,無塵車間工程,無塵車間建設,無塵車間潔凈度測試,無塵車間解決方案,百級無塵車間,千級無塵車間,萬級無塵車間,無塵車間標準,無塵車間施工,無塵車間設備,無塵車間設計、無塵車間施工、無塵車間維護,無塵車間亦稱凈化車間或無塵室潔凈室。
梓凈”牌空氣凈化設備產品質量保證:
1、我司出產的”梓凈”牌空氣凈化設備及空氣過濾器產品已獲國內、多項產品認證;
2、為滿足客戶對潔凈室的高品質要求,我司生產出廠的每一臺空氣凈化設備都經過我司質檢員的嚴格檢查,符合產品質量標準方可出廠;空氣過濾器都在標準萬級無塵車間內生產、檢測。
3、產品交付驗收完畢后,我司將對貴司及所訂購產品建立獨立的檔案,以便與我司長期的為貴司提供優質、及時的服務。
4、產品包裝:木箱或紙箱包裝;
5、發貨方式:貨運;
6、交貨時間:合同簽訂后我司收到貨款之日起5個工作日內完成生產,3個工作日內到貨;
服務宗旨:
7、公司出產的”梓凈”牌空氣凈化設備及空氣過濾器可提供長期的技術支持;
8、故障受理:省外48小時,省內24小時;
原文來源:廣州梓凈http://m.rayuhric.com/李工(139-2875-8616)
